Ein Tinyhaus-to-go

Mobil wie ein Wohnwagen.

Heute am Wasser, morgen im Garten, übermorgen am Strand …

Einzigartig durch
Wohnanhängerzulassung

Das Tinyhaus besitzt einen KFZ-Brief und ist für europäische Straßen bis 80 km/h zugelassen. Mit einem Gesamtgewicht von 3,5 t kann es problemlos von Fahrzeugen mit entsprechender Anhängelast gezogen werden.

Technische Daten

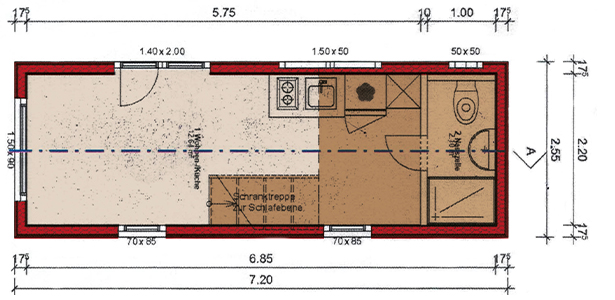
Länge | 7,2 m
Breite | 2,55 m
Höhe | 3,98 m
Fahrgestell | 3,5 t PKW Tandemtrailer
Gesamtgewicht | max. 3,5 t, Zulassung bis 80 km/h

massive Bauweise

Holzständerwerk, gedämmt,
Wände: Fichte, Dach: Zinkblecheindeckung,
Tür und Fenster:
Kunststoff und ISO-Fahrzeugglas

Stromanschluss
220 V inkl. FI-Schutzschalter, Lichtschalter, Steckdosen und LED-Einbaubeleuchtung
Warmwasserboiler | 30 L
Wasseranschluss | Gardena

Fertigungsvarianten

GEG konform, vollisoliert mit Spezialdämmung, Solar + Wärmepumpe, Wandstärke: 180 mm (inkl. Bauzeichnung, Statik)

für Urlaub oder Dauercamping, vollisoliert mit 60 mm Dämmung, Wandstärke: 120 mm

inkl. TÜV – Gutachten und Zulassung

Äußere Farbgebung nach Wunsch

Grundausstattung

» Küchenzeile mit Spüle
» Elektro Einbaukühlschrank
» 2 Platten Cerankochfeld
» Dusche, WC und Handwaschbecken
» LED Innen- und Außenbeleuchtung

» schlüsselfertig ohne bewegliche Möbel und Deko
» verschiedene Innenausbaumöglichkeite zur Wahl
» Vielzahl an individueller technischer Ausstattung möglich

Grundriss und Seitenansicht

ungefähre Abbildung, nicht maßstabsgetreu